MARTINENGO VILLA BIFAMILIARE

MARTINENGO VILLA BIFAMILIARE


330.000 €
350 m2
3 Camere
2 Bagni
1 Box
Sei stanco di veder vivere la tua famiglia in appartamenti stretti, costosi da mantenere e senza privacy? Questa è l’occasione che stavi aspettando!

Parliamo di una bifamiliare riservata e tranquilla, che ti sorprenderà, un quadrilocale, luminoso e ben distribuito, perfetto per una famiglia che vuole spazio, comfort e indipendenza.

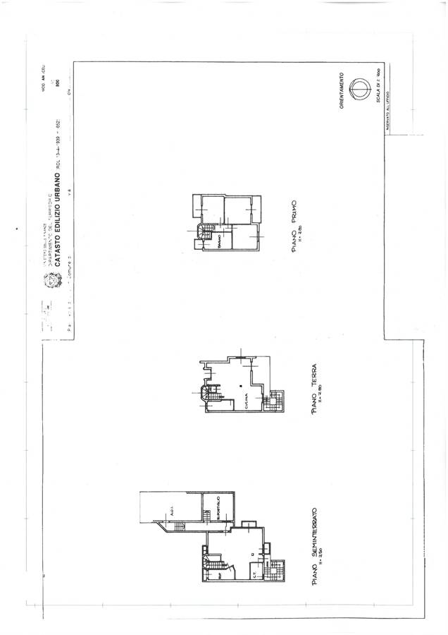
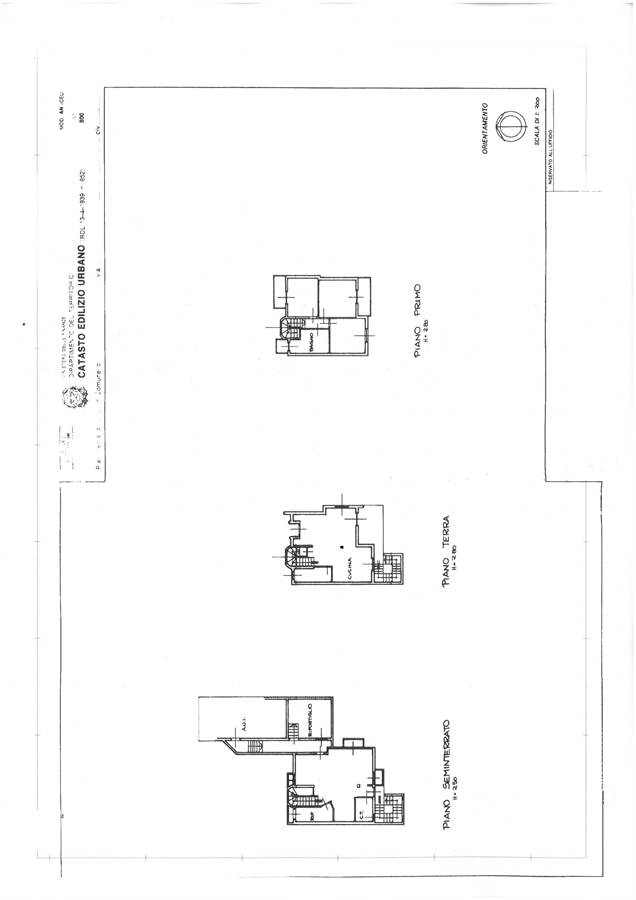
Sali pochi gradini, entra e lasciati conquistare: il grande soggiorno con accesso al portico e al giardino posteriore è il cuore della casa, ideale per rilassarti o accogliere amici e parenti. La cucina abitabile anche lei con accesso al portico e al giardino posteriore, offre tutto lo spazio che serve per cucinare e condividere momenti in famiglia al piano terra.Senza dimenticare il ripostiglio, utilissimo per mantenere tutto in ordine senza sacrificare altri spazi.

La zona notte al primo primo è perfettamente separata per garantire tranquillità e privacy, con tre comode camere e un bagno spazioso dove l’agio si sposa con la funzionalità.

Il tutto completato da cantina, una lavanderia, una taverna e box doppio nell’interrato, quest’ultimo ti assicura comodità e la certezza di avere sempre la tua auto parcheggiata al sicuro.

La villa bifamiliare vanta di un grande giardino che circonda sui tre lati l’ abitazione, perfetto per far giocare i bambini in sicurezza o godersi il relax all’aperto. Ma il vero vantaggio? Nessuna spesa condominiale!
Un risparmio concreto che rende questa scelta ancora più conveniente.

Questa è la casa che unisce spazio, tranquillità e convenienza. Non aspettare: contattaci subito per vederla prima che sia troppo tardi!

Chiama subito:
Telefono fisso: 0363/912878
Cellulare: 340/3429839 (disponibile anche su Whatsapp)).
Caratteristiche principali
Codice
259
Città
Martinengo
Categoria
Villa Bifamiliare
Locali
4
Camere
3
Bagni
2
Mq
350
Box
1
Mq Box
40
Mq Giardino
300
Balconi
3
Mq Balcone
7
Piano
Terra
Classe energetica
In fase di valutazione
Stato Immobile
Ottimo
Grado
Medio
Posizione
Periferia
Panorama
Vista Aperta
Orientamento
Nord Ovest Sud
Lati Liberi
3
Giardino
Privato
Tipo Soggiorno
Soggiorno
Tipo Cucina
Abitabile
Riscaldamento
Autonomo
Tipo Riscaldam.
Caldaia
Tipo Impianto
Radiatori
Fonte Energetica
Metano
Acqua Calda
Autonoma
Raffrescamento
Split
Infissi
Legno
Serramenti
Ottimo
Persiana
Persiana Legno
Pavim. Giorno
Marmo
Pavim. Notte
Parquet
Pavim. Cucina
Marmo
Pavim. Bagno
Ceramica
Accessori
Antifurto, Aria Condizionata, Camino, Cancello Elettrico, Doppi Vetri, Lavanderia, Porta Blindata, Ripostiglio, Video Citofono, Video Sorveglianza
Mappa
VIA E . FERMI , Martinengo (BG)
Planimetrie
Photo 73
Photo 73
Photo 73
Photo 73
Richiedi informazioni
Invia
Cookie preference