ROMANO DI LOMBARDIA VILLE DI PROSSIMA REALIZZAZIONE

ROMANO DI LOMBARDIA VILLE DI PROSSIMA REALIZZAZIONE


340.000 €
142 m2
4 Camere
2 Bagni
1 Box / 1 Posti auto
ROMANO DI LOMBARDIA VILLE DI PROSSIMA REALIZZAZIONE

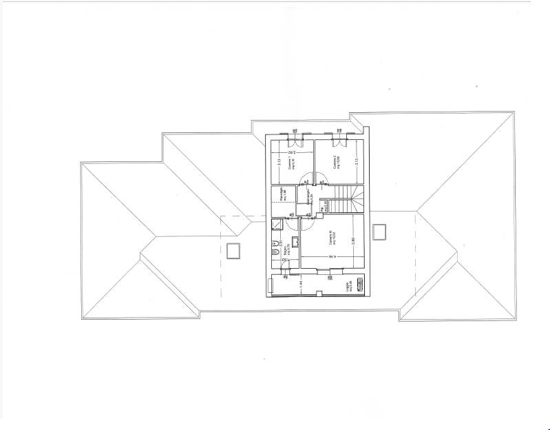
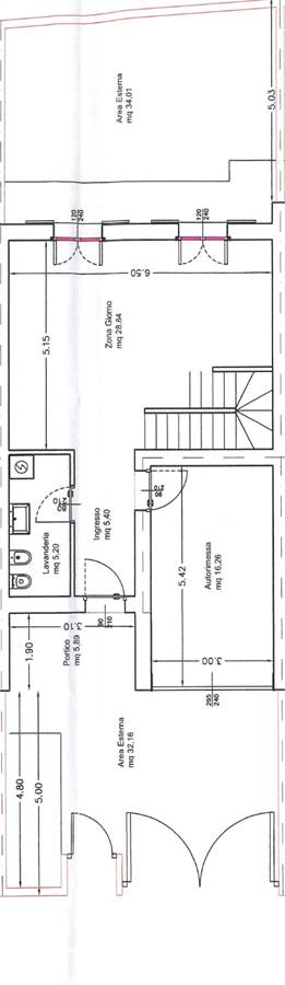
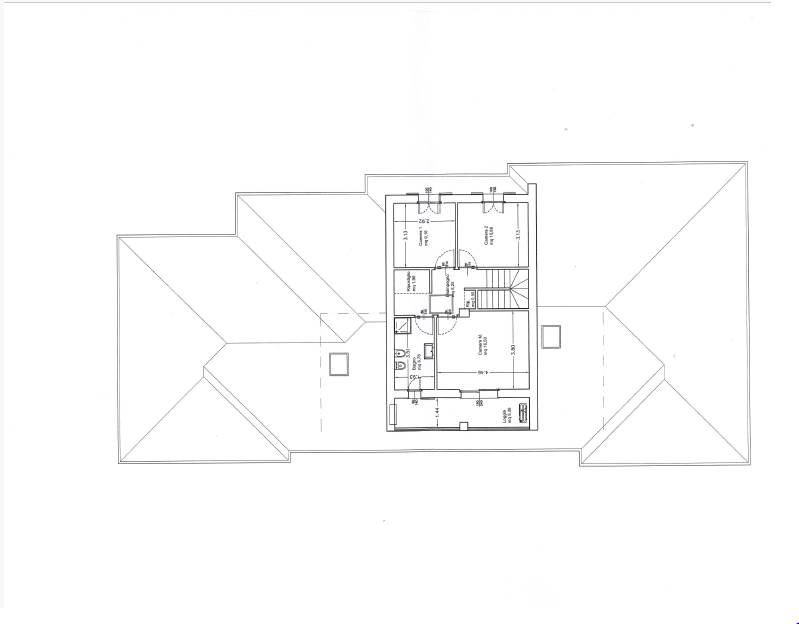
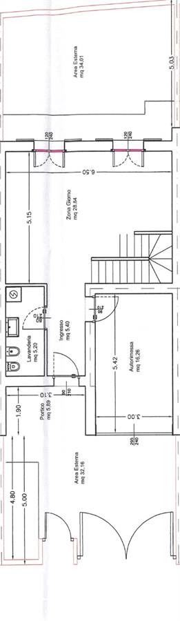
Da progetto, gli spazi saranno così organizzati: ampio e luminoso soggiorno con cucina a vista, disimpegno, bagno/lavanderia, zona notte composta da una spaziosa camera matrimoniale, due generose camere singole e un secondo bagno. Il tutto completato da un box e da un giardino privato.

*soggiorno/cucina 28,84 mq
*disimpegno ingresso 5,40 mq
*bagni piano terra 5,20 mq
*bagni piano primo 6,78 mq
*camera 1: 16,50 mq
*camera 2: 10,86 mq
*camera 3: 9,16 mq
*loggia : 9,26 mq
*ripostigli piano primo 2,5 mq
*disimpegno piano primo 6,25 mq
*autorimessa 16,20 mq
*giardino 35 mq

Non lasciarti sfuggire questa occasione per abbracciare uno stile di vita che supererà ogni aspettativa!
Per maggiori informazioni o per fissare un appuntamento, contattaci subito:

3403429839 (anche su WhatsApp)

0363912878 (fisso ufficio)

Caratteristiche principali
Codice
269
Città
Romano di Lombardia
Categoria
4 o più locali
Locali
4
Camere
4
Bagni
2
Mq
142
Box
1
Mq Box
16
Posti auto
1
Mq Giardino
66
Balconi
1
Mq Balcone
9
Piano
Terra
Classe energetica
A2
50 kWh/m²a
Stato Immobile
Prossima Realizzazione
Grado
Signorile
Panorama
Vista Aperta
Orientamento
Ovest Est
Lati Liberi
2
Giardino
Privato
Tipo Soggiorno
Soggiorno
Tipo Cucina
Angolo Cottura
Riscaldamento
Autonomo
Tipo Riscaldam.
Caldaia a Condensazione
Tipo Impianto
Pavimento
Fonte Energetica
Metano
Acqua Calda
Autonoma
Raffrescamento
Predisposizione
Infissi
Legno Doppio Vetro
Serramenti
Nuovo
Persiana
Persiana Legno
Pavim. Giorno
Personalizzato
Pavim. Notte
Personalizzato
Pavim. Cucina
Personalizzato
Pavim. Bagno
Personalizzato
Accessori
Antifurto, Aria Condizionata, Cancello Elettrico, Doppi Vetri, Pannelli Solari, Video Citofono
Mappa
via lamera 55, Romano di Lombardia (BG)
Planimetrie
Photo 23
Photo 23
Photo 23
Photo 23
Richiedi informazioni
Invia
Cookie preference