ROMANO DI LOMBARDIA VILLA SINGOLA CON PISCINA

ROMANO DI LOMBARDIA VILLA SINGOLA CON PISCINA


614.000 €
328 m2
3 Camere
3 Bagni
2 Box
DOVE IL LUSSO INCONTRA LA SERENITÀ

Villa singola con piscina e giardino – Romano di Lombardia
Via Antonio Galbiati 38
€ 614.000
306 mq totali – spazio per vivere, sognare, respirare COSTRUITA SU 1000 MQ DI AREA

OGNI GIORNO, UNA VACANZA. OGNI ANGOLO, UNA CAREZZA.
Hai mai immaginato di svegliarti ogni mattina circondato dal verde, dal silenzio, dal profumo di casa vera?
Questa villa è molto più di un’abitazione: è un rifugio di pace, un luogo dove la vita rallenta e lascia spazio alle emozioni.
Completamente ristrutturata nel 2010, unisce eleganza, innovazione e comfort assoluto, in una delle zone più tranquille e ricercate di Romano di Lombardia.

SPAZI CHE ACCOLGONO, ATMOSFERE CHE INCANTANO
Un ampio soggiorno dove rilassarsi davanti al camino a PELLET oltretutto collegato all impianto di riscaldamento della casa
Una cucina abitabile che profuma di famiglia e convivialità
3 camere da letto dove il silenzio abbraccia il riposo
3 bagni dal design moderno e funzionale
Una taverna calda e avvolgente, con camino a legna, perfetta per le serate d'inverno o per ospitare momenti indimenticabili

VIVI L’ESTATE TUTTO L’ANNO
Piscina al sale, il tocco di classe che trasforma ogni giornata in una vacanza
Terrazza coperta con apertura motorizzata, con tendine laterali per goderti il relax in ogni stagione
Giardino curato, con irrigazione automatica, per rigenerarti a ogni passo
Box auto con basculante motorizzata, comodo e sicuro

TECNOLOGIA E BENESSERE, A SERVIZIO DELLA TUA VITA
Cappotto termico interno e esterno
Impianti completamente rifatti
Fotovoltaico da 4,5 kW per un futuro più sostenibile
Aria condizionata canalizzata per comfort invisibile, in pompa di calore caldo , freddo e deumidificatore
Videosorveglianza esterna per la tua serenità
Antifurto per la tua sicurezza
Veneziane integrate nei serramenti, per eleganza e praticità
A due passi dal centro, ma lontana da tutto ciò che pesa.
Un angolo di mondo solo per te, dove ritrovare l’equilibrio.

UNA CASA CHE TI FA INNAMORARE, DAL PRIMO SGUARDO
Non è solo una villa.
È un sogno che diventa spazio, luce, profumo di casa vissuta.
È il luogo dove creare ricordi, crescere emozioni, vivere pienamente.
€ 614.000 – Pronta da vivere. Pronta per essere tua.
Contattaci oggi stesso per fissare una visita 0363 912878 O WHATSAPP 3403429839
Vieni a vedere con i tuoi occhi la bellezza di chiamare "casa" questo angolo di paradiso.

E c’è di più: siamo l’unica agenzia a Romano a mettere l'indirizzo esatto della casa, grazie al rapporto di fiducia con i proprietari.

Per maggiori informazioni o per fissare un appuntamento, contattaci subito:

3403429839 (anche su WhatsApp)

0363912878 (fisso ufficio)
Caratteristiche principali
Codice
707
Città
Romano di Lombardia
Categoria
Villa
Locali
4
Camere
3
Bagni
3
Mq
328
Box
2
Mq Box
49,66
Mq Giardino
1000
Balconi
2
Mq Balcone
17,71
Terrazzi
1
mq Terrazzo
20,8
Piano
Terra
Classe energetica
In fase di valutazione
Stato Immobile
Ottimo
Grado
Signorile
Posizione
Centro
Panorama
Vista Aperta
Orientamento
Nord Ovest Sud Est
Lati Liberi
4
Giardino
Privato
Arredi
Possibilità
Tipo Soggiorno
Soggiorno
Tipo Cucina
Abitabile
Riscaldamento
Autonomo
Tipo Riscaldam.
Termocamino
Tipo Impianto
Radiatori
Fonte Energetica
Metano
Acqua Calda
Autonoma
Raffrescamento
Centralizzato
Infissi
Legno Triplo Vetro
Serramenti
Ottimo
Persiana
Persiana Legno
Pavim. Giorno
Gres Porcellanato
Pavim. Notte
Gres Porcellanato
Pavim. Cucina
Gres Porcellanato
Pavim. Bagno
Gres Porcellanato
Pavimento
Gres Porcellanato
Tipo Saracinesca
Elettrica
Accesso Disabili
Nessuna Barriera
Accesso interno disabili
Pieno accesso
Isolamento
Presente
Isolamento termico
Cappotto interno
Accessori
Antifurto, Aria Condizionata, Armadio a Muro, Camino, Cancello Elettrico, Doppi Vetri, Impianto Domotica, Impianto Fotovoltaico, Lavanderia, Piscina, Porta Blindata, Ripostiglio, Video Citofono, Video Sorveglianza, Zanzariere
Mappa
VIA ANTONIO GALBIATI 38, Romano di Lombardia (BG)
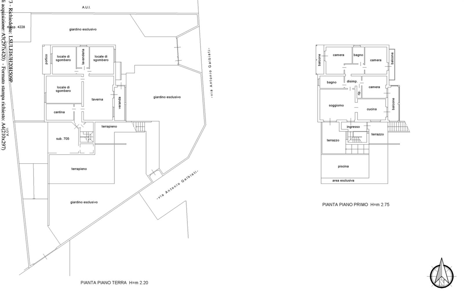
Planimetrie
Photo 60
Photo 60
Photo 60
Richiedi informazioni
Invia
Cookie preference