ROMANO DI LOMBARDIA

ROMANO DI LOMBARDIA


219.000 €
134 m2
2 Bagni
1 Box
Romano di Lombardia – Via Friuli Venezia Giulia

Immagina di aprire le porte del soggiorno e ritrovarti in un angolo verde tutto tuo, dove la luce entra generosa e il tempo rallenta. In una zona residenziale tranquilla e curata, proponiamo in vendita un appartamento che unisce spazio, comfort e qualità, pensato per essere davvero vissuto.

Il soggiorno luminoso si affaccia su una terrazza coperta, perfetta per colazioni lente, cene con amici o momenti di relax in ogni stagione. La cucina separata e abitabile, con accesso diretto all’esterno, è il cuore della casa: pratica, accogliente, ideale per la quotidianità di una famiglia.

Il giardino privato, collegato sia al soggiorno che alla cucina, regala uno spazio verde intimo, perfetto per chi ama stare all’aria aperta senza rinunciare alla privacy.

La zona notte offre due camere da letto dalle dimensioni generose, vere stanze da vivere, arredabili senza compromessi.

I due bagni, uno con vasca e uno con doccia, sono studiati per il massimo comfort, con spazio dedicato a lavatrice e asciugatrice.

La casa è dotata di riscaldamento a pavimento, serramenti in legno con doppio vetro, predisposizione per aria condizionata e impianto antifurto, dettagli che fanno la differenza nel vivere quotidiano.

A completare la proprietà una cantina di grande metratura, perfetta anche come spazio hobby, e un box doppio in lunghezza, comodo e funzionale.

Crediamo nella trasparenza: siamo L'UNICA AGENZIA A ROMANO DI LOMBARDIA A INDICARTE sempre l’esatto indirizzo degli immobili che proponiamo in vendita.

RICAPITOLANDO

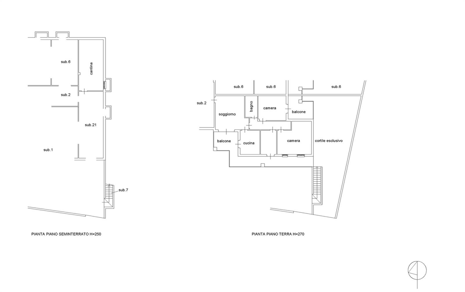
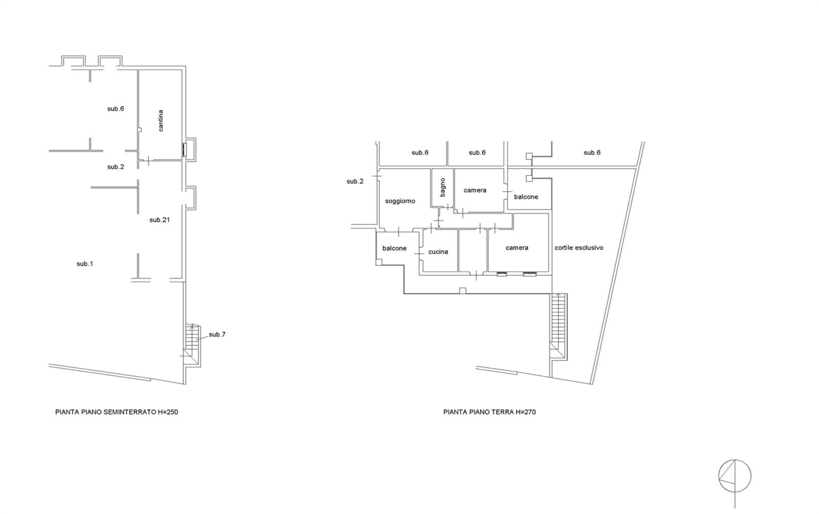
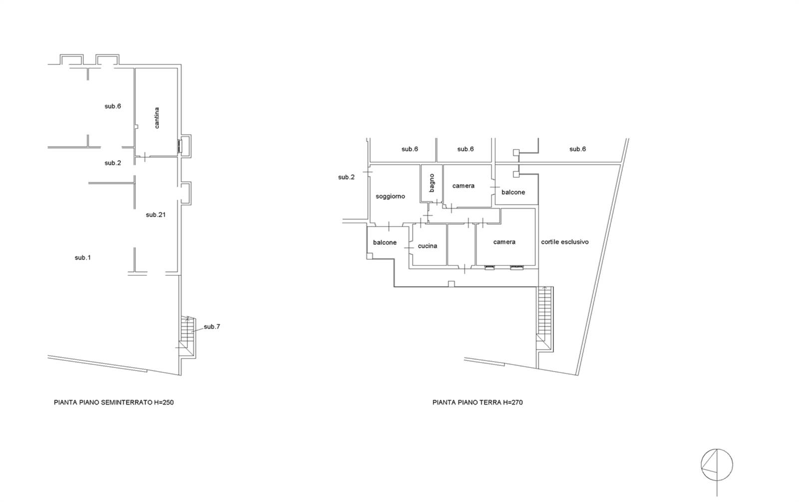
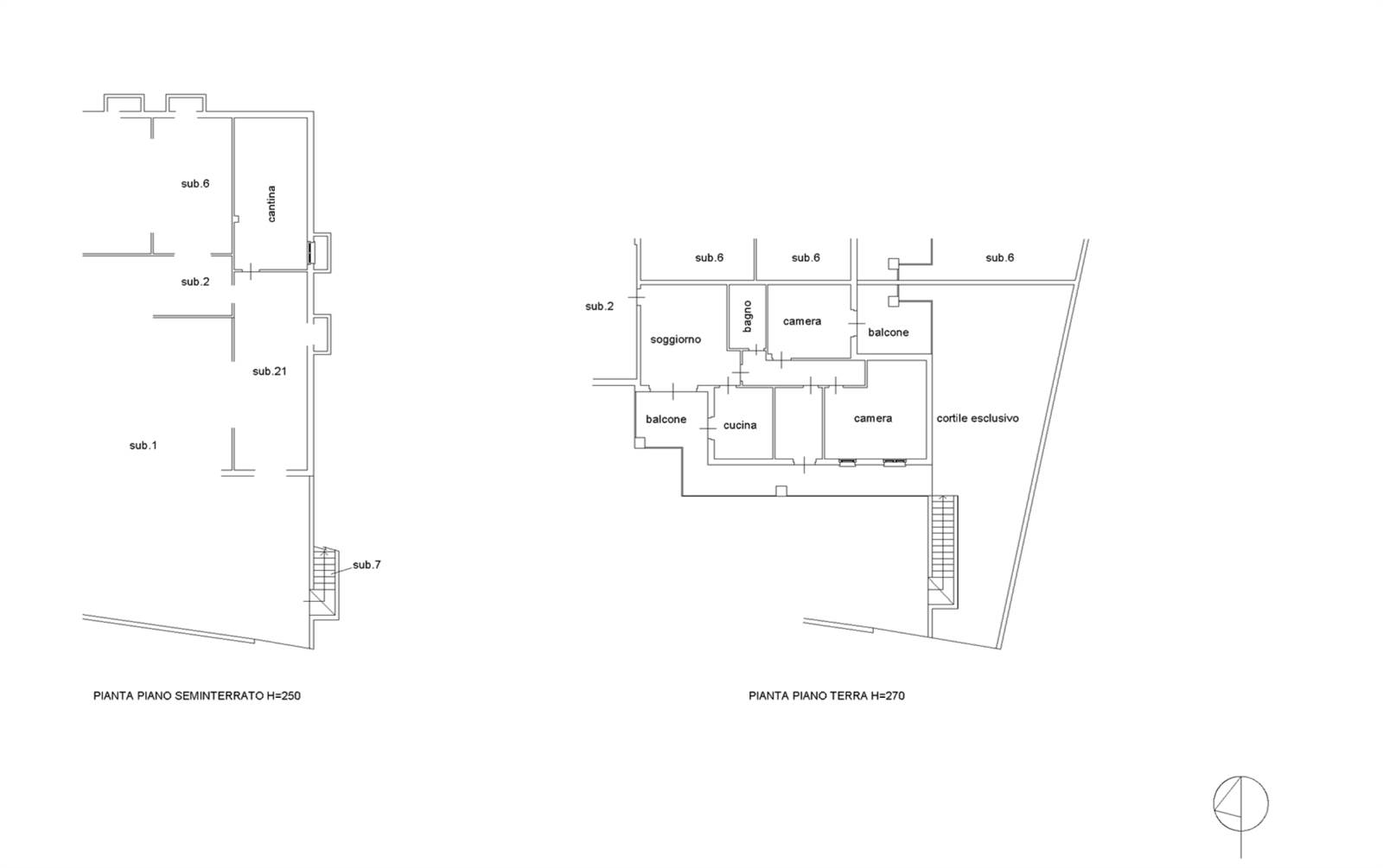
abitazione 97 mq
cantina 24,67 mq
box 34,05
giardino 100 mq
terrazzo 15 mq

Questa non è solo una casa, è il luogo dove costruire i tuoi momenti migliori.
Chiama lo 0363 912878 o scrivici su WhatsApp al 340 3429839 per prenotare la tua visita.
Caratteristiche principali
Codice
720
Città
Romano di Lombardia
Categoria
3 locali
Spese condominiali
852 € / anno
Locali
3
Bagni
2
Mq
134
Box
1
Mq Box
34,05
Mq Giardino
100
Balconi
1
Mq Balcone
13
Terrazzi
1
mq Terrazzo
15
Piano
Terra
Classe energetica
In fase di valutazione
Stato Immobile
Ottimo
Grado
Signorile
Posizione
Centro
Panorama
Vista Aperta
Orientamento
Est Sud Ovest
Lati Liberi
3
Giardino
Privato
Arredi
Non Arredato
Tipo Soggiorno
Soggiorno
Tipo Cucina
Abitabile
Riscaldamento
Autonomo
Tipo Riscaldam.
Caldaia a Condensazione
Tipo Impianto
Pavimento
Fonte Energetica
Metano
Acqua Calda
Autonoma
Raffrescamento
Predisposizione
Infissi
Legno Doppio Vetro
Serramenti
Ottimo
Persiana
Tapparella PVC
Pavim. Giorno
Ceramica
Pavim. Notte
Parquet
Pavim. Cucina
Ceramica
Pavim. Bagno
Ceramica
Pavimento
Ceramica
Tipo Saracinesca
Manuale
Accesso Disabili
Nessuna Barriera
Accesso interno disabili
Pieno accesso
Isolamento
Presente
Accessori
Antifurto, Aria Condizionata, Cancello Elettrico, Doppi Vetri, Lavanderia, Porta Blindata, Veranda, Video Citofono, Zanzariere
Mappa
via friuli venezia giulia 16, Romano di Lombardia (BG)
Planimetrie
Photo 59
Photo 59
Photo 59
Photo 59
Photo 59
Photo 59
Photo 59
Photo 59
Richiedi informazioni
Invia
Cookie preference