VILLETTA A ROMANO DI LOMBARDIA

VILLETTA A ROMANO DI LOMBARDIA


229.000 €
141 m2
3 Camere
3 Bagni
1 Box
Da quanto tempo stai cercando una villetta a Romano?
E ogni volta che ne trovi una… c’è sempre qualcosa che non va?

Finalmente ho la soluzione per te!

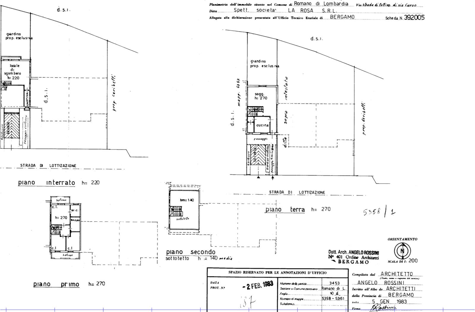
Proponiamo una splendida villetta disposta su 4 livelli, con spazi veramente ampi e ben distribuiti.

Al piano terra troviamo tutto ciò di cui hai bisogno: un grande soggiorno luminoso, una cucina separata e un bagno, il tutto all’insegna della comodità e della funzionalità.

Dal soggiorno si accede direttamente al giardino privato sul retro, perfetto per invitare gli amici a gustare una buona pizza nelle sere d’estate o per rilassarsi in totale tranquillità.

Al primo piano si sviluppa la zona notte con tre camere da letto spaziose e due bagni, di cui uno riservato alla camera matrimoniale.

Al secondo piano una mansarda abitabile, ideale per molteplici utilizzi: studio, zona hobby, area relax o una fantastica sala giochi per i vostri bambini.

A completare la proprietà troviamo una taverna al piano seminterrato, una cantina e un pratico box con cancello privato: niente più spazi condivisi, qui l’indipendenza è totale.

L' abitazione e' sempre stata mantenuta in maniera eccellente e negli anni sono sempre state effettuate delle migliorie

rifatto pavimento nelle camere
rifatto completamente il tetto
mansarda pavimentata e riscaldata
riscaldamento diviso a piano
caldaia sostituita a condensazione
tende da sole elettrificate

Se stavi aspettando la casa giusta, potresti averla appena trovata.

Ricapitolando:
Abitazione: 112,42 mq
Balconi: 11,16 mq
Cantina: 34,58 mq
Box: 27.76 mq
Spazio esterno: 100 mq

E c’è di più: siamo l’unica agenzia a Romano a mettere l'indirizzo esatto della casa, grazie al rapporto di fiducia con i proprietari.

Per maggiori informazioni o per fissare un appuntamento, contattaci subito:

3403429839 (anche su WhatsApp)

0363912878 (fisso ufficio)

3484143500 (Luca)
Caratteristiche principali
Codice
724
Città
Romano di Lombardia
Categoria
Villetta schiera
Locali
4
Camere
3
Bagni
3
Mq
141
Box
1
Mq Box
27,76
Mq Giardino
100
Balconi
2
Mq Balcone
11,16
Piano
Terra
Classe energetica
In fase di valutazione
Stato Immobile
Buono
Grado
Signorile
Posizione
Centro
Panorama
Vista Giardino
Orientamento
Sud Nord
Lati Liberi
2
Giardino
Privato
Arredi
Possibilità
Tipo Soggiorno
Soggiorno
Tipo Cucina
Abitabile
Riscaldamento
Autonomo
Tipo Riscaldam.
Caldaia a Condensazione
Tipo Impianto
Radiatori
Fonte Energetica
Metano
Acqua Calda
Autonoma
Raffrescamento
No
Infissi
Legno Doppio Vetro
Serramenti
Ottimo
Persiana
Persiana Legno
Pavim. Giorno
Ceramica
Pavim. Notte
Ceramica
Pavim. Cucina
Ceramica
Pavim. Bagno
Ceramica
Pavimento
Ceramica
Tipo Saracinesca
Manuale
Accesso Disabili
Nessuna Barriera
Accessori
Antifurto, Camino, Cancello Elettrico, Doppi Vetri, Lavanderia, Passaggio Pedonale, Zanzariere
Mappa
VIA CARSO 51, Romano di Lombardia (BG)
Planimetrie
Photo 77
Photo 77
Photo 77
Photo 77
Richiedi informazioni
Invia
Cookie preference