VILLA BIFAMILIARE A CORTENUOVA

VILLA BIFAMILIARE A CORTENUOVA


239.000 €
155 m2
2 Bagni
1 Box
Finalmente una splendida villa bifamiliare: l’indipendenza non è davvero una cosa da poco!

Siamo a Cortenuova, un paese tranquillo a due passi da Romano di Lombardia.

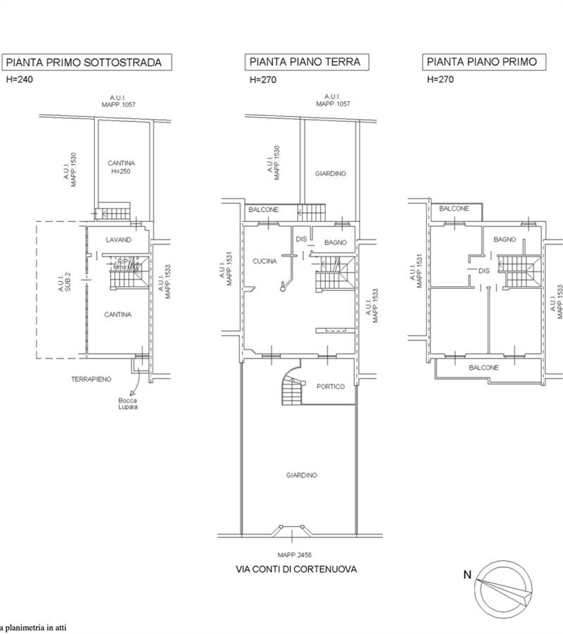
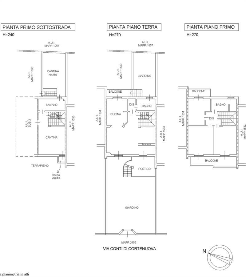
Al piano terra, oltre al bellissimo giardino protagonista delle tue prossime estati, troviamo un porticato accogliente. Entrando in casa si apre un luminoso soggiorno con cucina separata: niente odori in giro per casa! Inoltre dalla cucina si accede direttamente a un secondo spazio esterno, perfetto per pranzi e momenti di relax. Completa il piano un comodo bagno di servizio, così eviterai le continue scale.

Al primo piano troviamo tre comode camere da letto e un bagno: famiglie, qui non avrete più problemi di spazio.

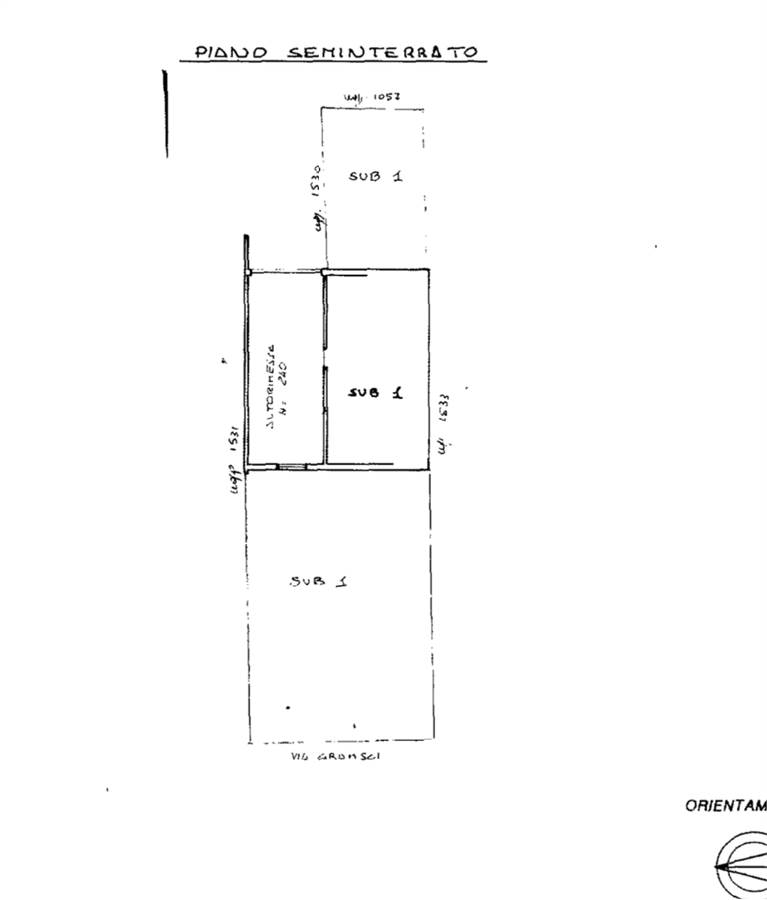
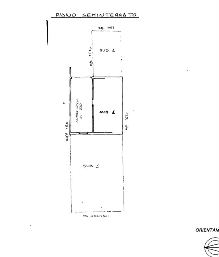
Al piano seminterrato c’è una comodissima taverna, ideale per cene con amici o momenti di svago. A completare il tutto un box doppio, così le tue auto saranno al sicuro da qualsiasi evento atmosferico.

Ricapitolando:
Abitazione: 120 mq
taverna: 50 mq
Cantina 23 mq
Balconi 12 mq
Box 26 mq

E c’è di più: siamo l’unica agenzia a Romano a mettere l'indirizzo esatto della casa, grazie al rapporto di fiducia con i proprietari.

Per maggiori informazioni o per fissare un appuntamento, contattaci subito:

3403429839 (anche su WhatsApp)

0363912878 (fisso ufficio)

3484143500 (Luca)
Caratteristiche principali
Codice
725
Città
Cortenuova
Categoria
Villa Bifamiliare
Locali
4
Bagni
2
Mq
155
Box
1
Mq Box
26
Mq Giardino
87
Mq Balcone
12
mq Terrazzo
28
Piano
Terra
Classe energetica
In fase di valutazione
Stato Immobile
Buono
Grado
Medio
Posizione
Centro
Panorama
Vista Giardino
Orientamento
Ovest Est
Lati Liberi
2
Giardino
Privato
Tipo Soggiorno
Soggiorno
Tipo Cucina
Abitabile
Riscaldamento
Autonomo
Tipo Riscaldam.
Caldaia
Tipo Impianto
Radiatori
Fonte Energetica
Metano
Acqua Calda
Autonoma
Raffrescamento
Predisposizione
Infissi
Legno Doppio Vetro
Serramenti
Buono
Persiana
Persiana Legno
Pavim. Giorno
Ceramica
Pavim. Notte
Parquet
Pavim. Cucina
Ceramica
Pavim. Bagno
Ceramica
Pavimento
Ceramica
Tipo Saracinesca
Manuale
Accessori
Antifurto, Camino, Doppi Vetri, Lavanderia, Porta Blindata, Ripostiglio, Zanzariere
Mappa
VIA CONTI DI CORTENUOVA 4, Cortenuova (BG)
Planimetrie
Photo 86
Photo 86
Photo 86
Photo 86
Richiedi informazioni
Invia
Cookie preference